• 10×10米三层新中式自建别墅
      2024.01.07

      10×10米三层新中式自建别墅

      10×10米三层新中式自建别墅这栋三层新中式自建别墅,开间10米、进深10米,整体设计非常合理。户型方正中规中矩,给人一种稳重的感觉。一层布置了客厅、厨房餐厅、卧室,餐厅设置后门,可以进入后庭院,方便用餐时欣赏美景。客厅中空,具有很好的空间感,显得气派豪华。二...

    • 7.5x21米二层自建别墅设计案例解析
      2023.11.07

      7.5x21米二层自建别墅设计案例解析

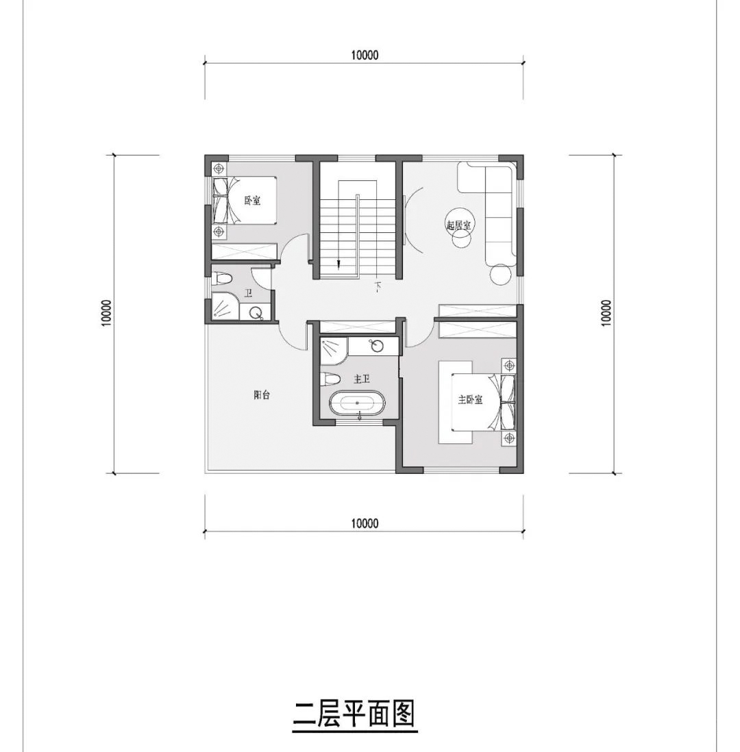
      项目背景:1.场地21x7.5米,细长条型,坐北朝南,需要大门开在南侧;东面前半部是老房子(中医诊所,两层),后半部是是自家池塘;西侧是村委和球场,距离只有60公分,所以避免影响一楼尽可能不在西侧开窗,上二楼可以西侧开。**一楼设计:**1.由于需要预留车位,...

    • 16x7.5米自建别墅案例
      2023.10.07

      16x7.5米自建别墅案例

      地块的优势在于长达16米的大面宽,这样就会让更多的空间位于朝南的方位,从而获得不错的通风采光条件。一层布置了老人房、客厅、餐厅、厨房,都有非常不错的空间。这里说一下厨房,一些人看了听了所谓的风水课程,觉得厨房不应该设置在房子西北角。这完全是一种半吊子的说法,房...

    • 10×10米现代风格二层自建别墅
      2023.08.07

      10×10米现代风格二层自建别墅

      10x10米现代二层别墅设计的简要概述**一层设计**:1.考虑到门口是道路主干道,入户大堂的设计不仅提供了宽敞的迎宾空间,还可以作为一个缓冲区,避免直接暴露于主干道的喧嚣。2.大堂可以设有装饰性的特点,如艺术挂画、特色地面或吊顶设计,营造出现代而温馨的第一印...

    • 12套一层别墅经典户型
      2023.07.07

      12套一层别墅经典户型

      经历过城市漂泊后的中年人,更愿意回到农村。回农村建房子,别墅也好平房也好,有个自己的小院,养鸡种菜,有个一亩三分地,吃穿不愁,生活安逸。这样的晚年生活,是很多人梦寐以求的幸福。所以对于农村人说,建房子是一辈子的大事,很可能一辈子只建这一次房子,所以建房前的准备...

    • 混凝土多久能凝固好
      2023.07.06

      混凝土多久能凝固好

      混凝土是一种常用的建筑材料,它由水泥、砂、石子和水等原材料混合而成。在施工过程中,混凝土需要经历一定的时间才能完全凝固好。下面为大家介绍混凝土多久能凝固好。一、混凝土多久能凝固好混凝土的凝固过程可以分为初凝和终凝两个阶段。初凝是指混凝土开始变得坚硬的时间,终凝...

    • 8×15米临街自建房别墅
      2023.06.07

      8×15米临街自建房别墅

      在临街自建房别墅设计中,设计师充分考虑了隐私和采光两个重要方面,以确保居住者能够享受到舒适、宁静的生活环境。首先,一层布局经过精心安排,包括内玄关、客餐厅、厨房和卧室等各个功能区域。这种布局设计既满足了居住者的生活需求,又保证了空间的合理利用。同时,设计师们还...

    • 500平方现代质感精致别墅设计
      2023.05.30

      500平方现代质感精致别墅设计

      500平方现代质感精致别墅设计...

    作者

    作者

    欢迎您光临我们公司,我们提供最优质的服务,欢迎您的光临。

    推荐产品

    • 北欧简约实木布艺餐椅
    • Stakk小方椅
    • 温莎椅子
    • 桠杈系列北欧简约实木铁杉木桌子
    • 北欧懒人布艺椅
    • 橙色吊灯
    • 圆形玻璃灯
    • FIN-95懒人小方椅
    • 木制菜碟小套件
    • Tapani table
    • Pendant lamp
    • Vandmand简洁小吊灯