10×10米三层新中式自建别墅

    2024.01.07 KAIHN 3677

    10×10米三层新中式自建别墅

    KAIHN铠瀚|定制设计|北欧家具|美式家具|现代家具|新中式家具|家居家具|商业道具|实木家具|展示展柜|布艺沙发|实木椅子|实木桌子|实木茶几|实木床|实木衣柜|工程单家具|一件代发|厂家直销

    KAIHN铠瀚|定制设计|北欧家具|美式家具|现代家具|新中式家具|家居家具|商业道具|实木家具|展示展柜|布艺沙发|实木椅子|实木桌子|实木茶几|实木床|实木衣柜|工程单家具|一件代发|厂家直销

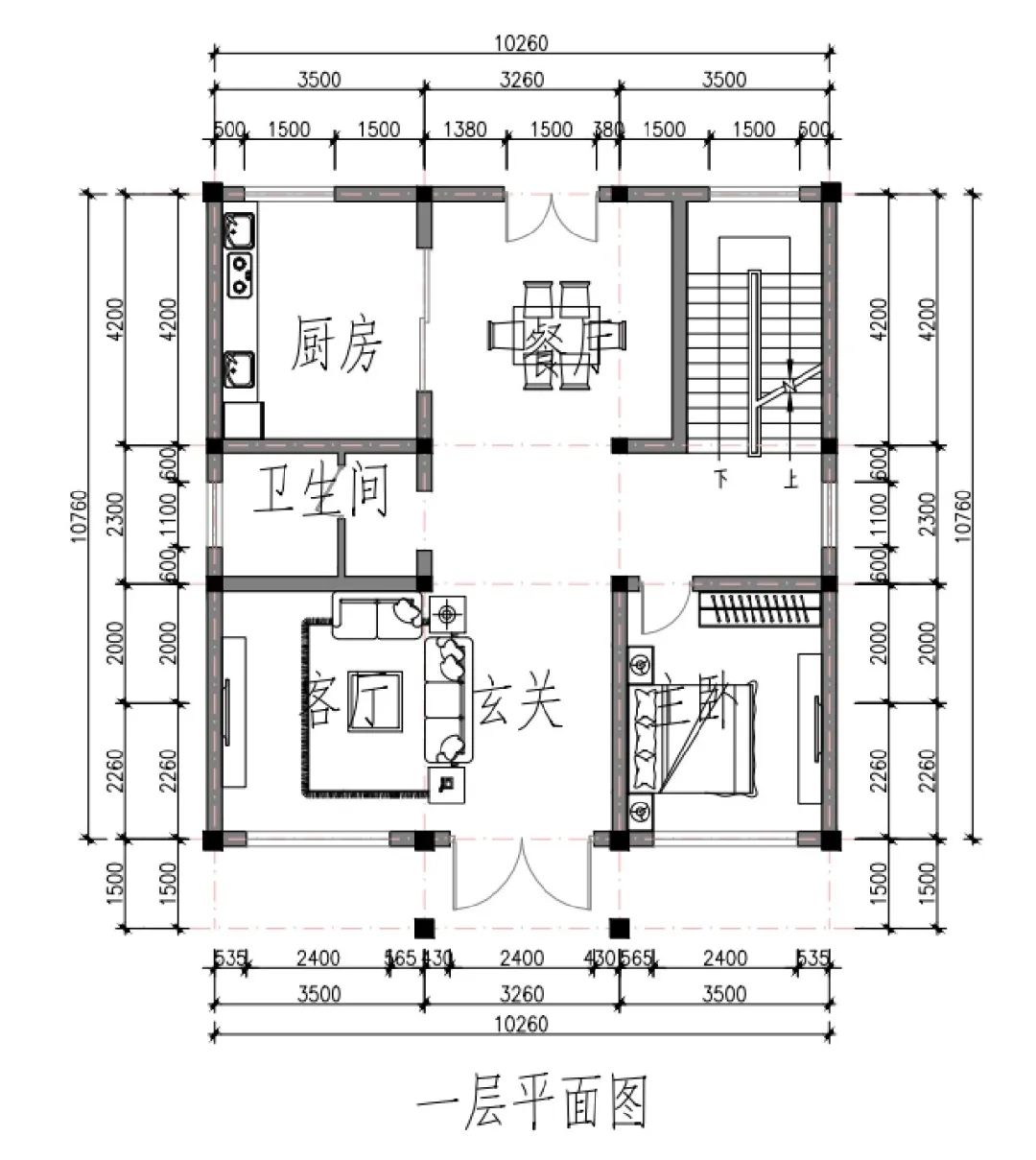
    这栋三层新中式自建别墅,开间10米、进深10米,整体设计非常合理。户型方正中规中矩,给人一种稳重的感觉。一层布置了客厅、厨房餐厅、卧室,餐厅设置后门,可以进入后庭院,方便用餐时欣赏美景。客厅中空,具有很好的空间感,显得气派豪华。

    KAIHN铠瀚|定制设计|北欧家具|美式家具|现代家具|新中式家具|家居家具|商业道具|实木家具|展示展柜|布艺沙发|实木椅子|实木桌子|实木茶几|实木床|实木衣柜|工程单家具|一件代发|厂家直销

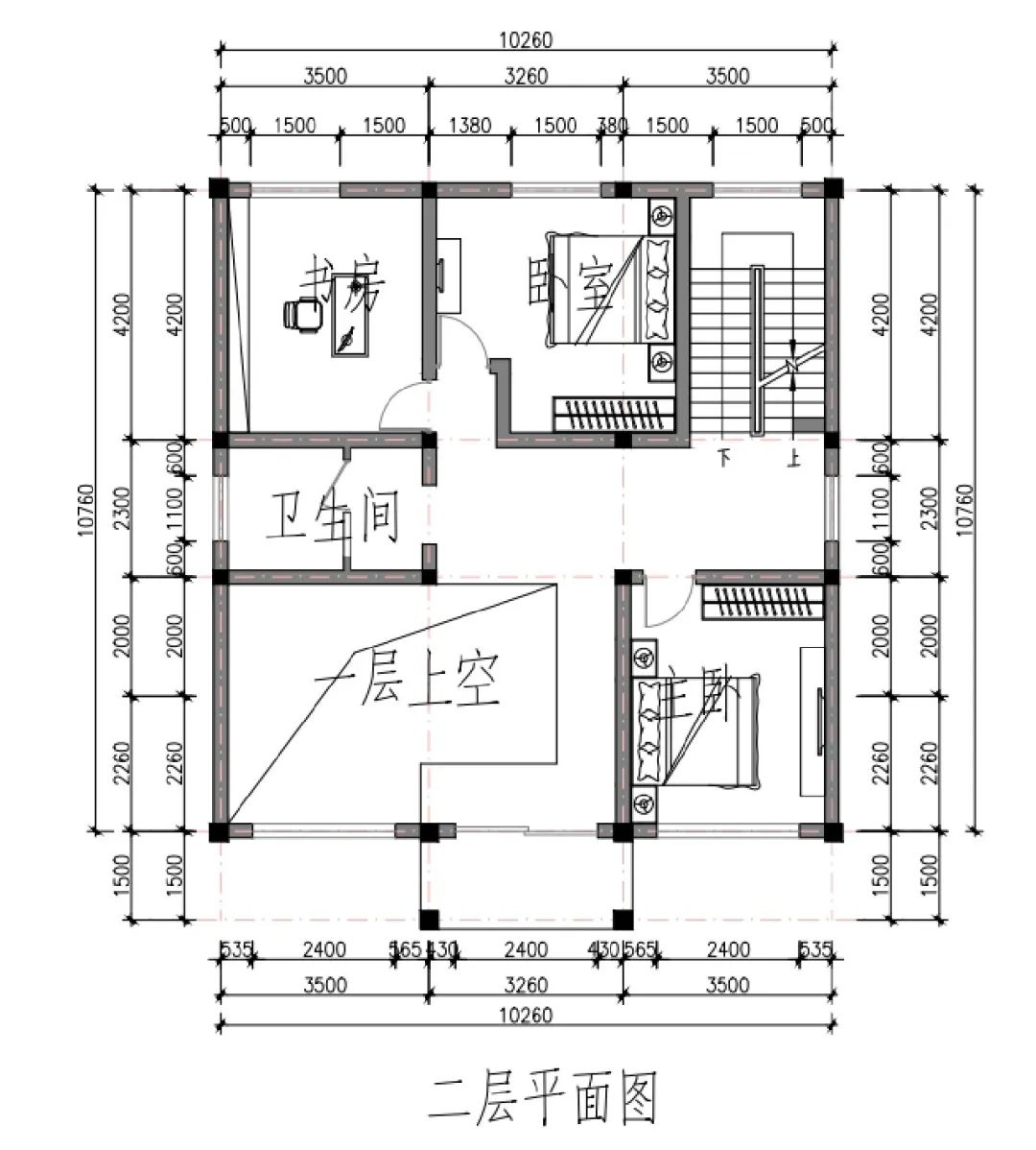
    二层布置了两个卧室、一个书房,为居住者提供了舒适的休息和学习环境。三层则为娱乐休闲空间,大露台满足洗衣晾晒、户外休闲的需要,让居住者在忙碌的生活中得到放松。

    KAIHN铠瀚|定制设计|北欧家具|美式家具|现代家具|新中式家具|家居家具|商业道具|实木家具|展示展柜|布艺沙发|实木椅子|实木桌子|实木茶几|实木床|实木衣柜|工程单家具|一件代发|厂家直销

    KAIHN铠瀚|定制设计|北欧家具|美式家具|现代家具|新中式家具|家居家具|商业道具|实木家具|展示展柜|布艺沙发|实木椅子|实木桌子|实木茶几|实木床|实木衣柜|工程单家具|一件代发|厂家直销

    然而,也许很多人不能理解的是每一层只设置一个卫生间。首先,这是考虑到居住人口的需要,避免卫生间过多导致浪费空间。其次,这也是为了节省装修成本,毕竟多一个卫生间就会多出一笔费用。建房还是要根据自己的情况权衡利弊,综合考虑。


    总的来说,这栋三层新中式自建别墅在设计上非常合理,既满足了居住者的生活需求,又节约了装修成本。这样的设计不仅体现了居住者的品味,也为居住者提供了一个舒适、温馨的家。


    作者

    作者

    欢迎您光临我们公司,我们提供最优质的服务,欢迎您的光临。

    推荐产品

    • 北欧简约实木布艺餐椅
    • Stakk小方椅
    • 温莎椅子
    • 桠杈系列北欧简约实木铁杉木桌子
    • 北欧懒人布艺椅
    • 橙色吊灯
    • 圆形玻璃灯
    • FIN-95懒人小方椅
    • 木制菜碟小套件
    • Tapani table
    • Pendant lamp
    • Vandmand简洁小吊灯