10x10米现代风格别墅自建房

    2023.04.30 KAIHN 1662

    项目概述:宅基地面积为10米乘以10米。周围环境较为空旷,且地块门口紧邻一条主要道路。业主期望建造一座现代风格的三层别墅,要求设计中包含一个宽敞的庭院花园以及一个大露台,同时要求一层设有分隔的客餐厅,二层配置三间卧室,三层设计有一个大露台;外观造型上追求简约风格。

    KAIHN铠瀚|定制设计|北欧家具|美式家具|现代家具|新中式家具|家居家具|商业道具|实木家具|展示展柜|布艺沙发|实木椅子|实木桌子|实木茶几|实木床|实木衣柜|工程单家具|一件代发|厂家直销

    设计概念:


    在考虑业主的需求及宅基地特点后,我们的设计概念旨在通过合理的空间布局和简约的建筑美学,创造一个结合舒适性与功能性的现代居住空间。


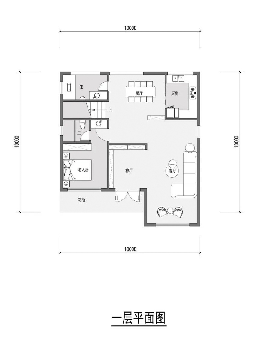
    一层布局设计:


    - 进入别墅首先是一个开阔的客厅空间,作为接待访客及家庭成员日常活动的核心区域。

    - 餐厅设置在北侧横向位置,以利用自然光照并保持私密性。

    - 剩余空间被规划为功能房,可根据业主需求灵活使用,如书房、储物间或其他娱乐空间。

    KAIHN铠瀚|定制设计|北欧家具|美式家具|现代家具|新中式家具|家居家具|商业道具|实木家具|展示展柜|布艺沙发|实木椅子|实木桌子|实木茶几|实木床|实木衣柜|工程单家具|一件代发|厂家直销

    二层布局设计:


    - 二层中心位置设置为起居室,提供一个休闲放松的空间。

    - 其他部分划分为三间卧室,其中南侧的卧室带有独立阳台,让居住者可以享受庭院景观,增强生活质感。

    KAIHN铠瀚|定制设计|北欧家具|美式家具|现代家具|新中式家具|家居家具|商业道具|实木家具|展示展柜|布艺沙发|实木椅子|实木桌子|实木茶几|实木床|实木衣柜|工程单家具|一件代发|厂家直销

    三层布局设计:


    - 三层的重点设计为一个宽敞的大露台,不仅可以用作户外娱乐区,也可作为观赏周边景色的最佳场所。

    - 考虑到简约风格,露台的设计将注重线条简洁和使用现代材料。


    外观设计:


    - 建筑外观采用简洁明快的线条,强调现代感与实用性。

    - 选用的材料和色彩将以现代简约为原则,体现清新与时代感。

    - 立面设计将考虑功能分区和视觉美感的平衡,使建筑既美观又实用。


    总体而言,本设计方案旨在打造一个简约而现代的住宅,不仅满足业主对空间布局的要求,也兼顾了建筑的审美和环境的和谐。我们期待这个设计能够实现业主对理想家园的设想。


    作者

    作者

    欢迎您光临我们公司,我们提供最优质的服务,欢迎您的光临。

    推荐产品

    • 北欧简约实木布艺餐椅
    • Stakk小方椅
    • 温莎椅子
    • 桠杈系列北欧简约实木铁杉木桌子
    • 北欧懒人布艺椅
    • 橙色吊灯
    • 圆形玻璃灯
    • FIN-95懒人小方椅
    • 木制菜碟小套件
    • Tapani table
    • Pendant lamp
    • Vandmand简洁小吊灯