6.9X16.5米自建别墅设计案例

    2023.04.22 KAIHN 1664

    这里是一个对地下室至三层平面的概括性描述,旨在体现空间规划和设计特点:


    **地下室平面**

    KAIHN铠瀚|定制设计|北欧家具|美式家具|现代家具|新中式家具|家居家具|商业道具|实木家具|展示展柜|布艺沙发|实木椅子|实木桌子|实木茶几|实木床|实木衣柜|工程单家具|一件代发|厂家直销

    1. **光线引入**:采用天窗、采光井或反射管道等手段,将自然光引入地下室,以打造明亮舒适的地下空间。


    2. **功能分区**:

       - **家庭室**:配备舒适的座椅和娱乐设施,作为家庭成员休息和聚会的中心地带。

       - **酒吧区**:设置吧台和酒柜,营造社交氛围,适合家庭聚会和朋友小聚。

       - **健身区**:配置必要的健身器材,满足日常锻炼需求。

       - **娱乐区**:可能包括桌球、桌游或其他娱乐设施,为家庭成员提供休闲选择。

       - **影音室**:私人电影院设置,高品质的视听设备,享受观影体验。


    3. **气氛营造**:通过色彩、材料选择及灯光设计,赋予空间一种庄重而温馨的氛围。


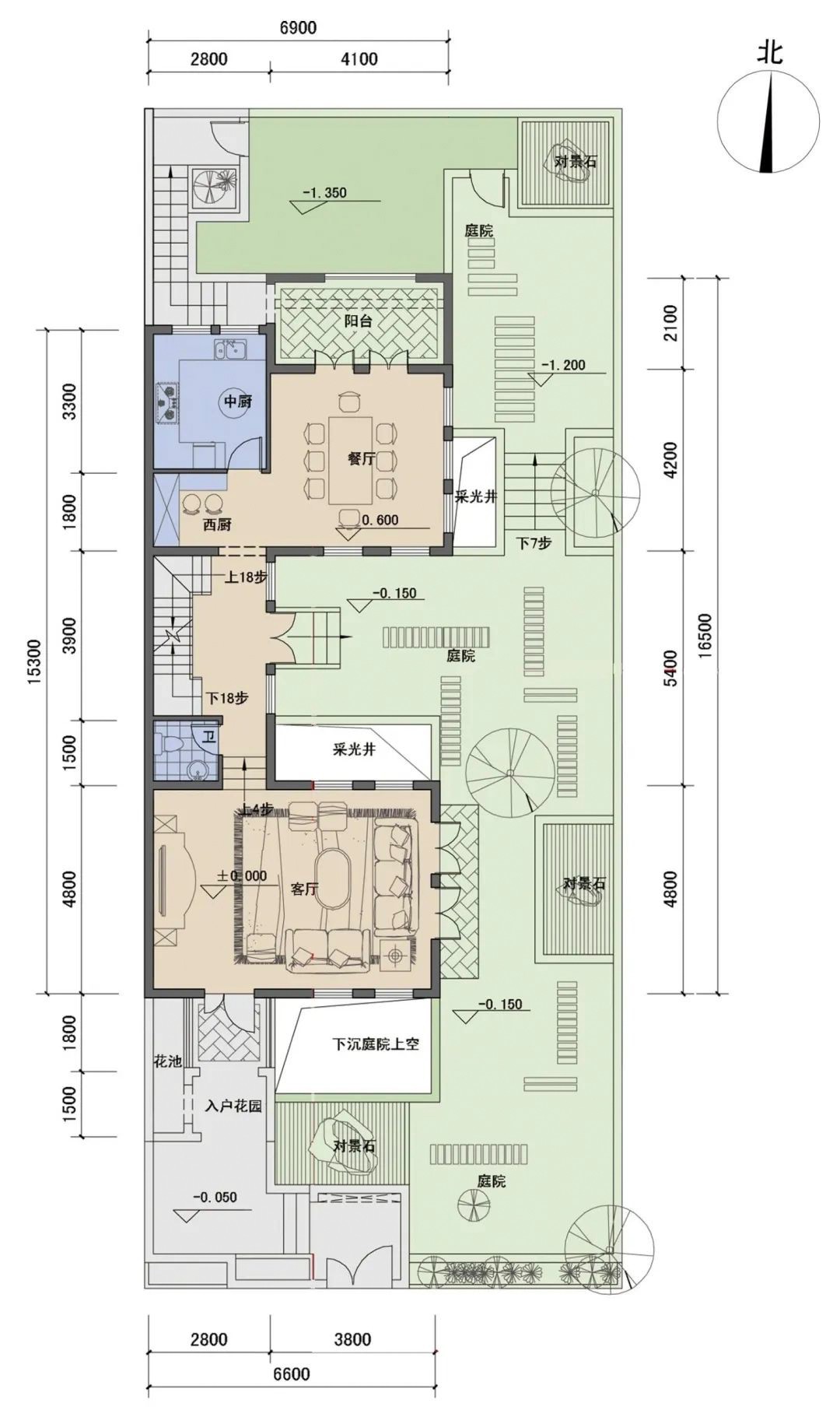
    **一层平面**

    KAIHN铠瀚|定制设计|北欧家具|美式家具|现代家具|新中式家具|家居家具|商业道具|实木家具|展示展柜|布艺沙发|实木椅子|实木桌子|实木茶几|实木床|实木衣柜|工程单家具|一件代发|厂家直销

    1. **南向采光**:全南户型的设计确保了所有居住空间都能享受到充足的阳光照射。


    2. **内院设计**:独特的内院布局使得景观与建筑相得益彰,增强居住的私密性和舒适度。


    3. **餐厅空间**:独立的餐厅设计注重礼仪和自然元素的融合,与厨房和庭院相连,创造一个开放的用餐环境。


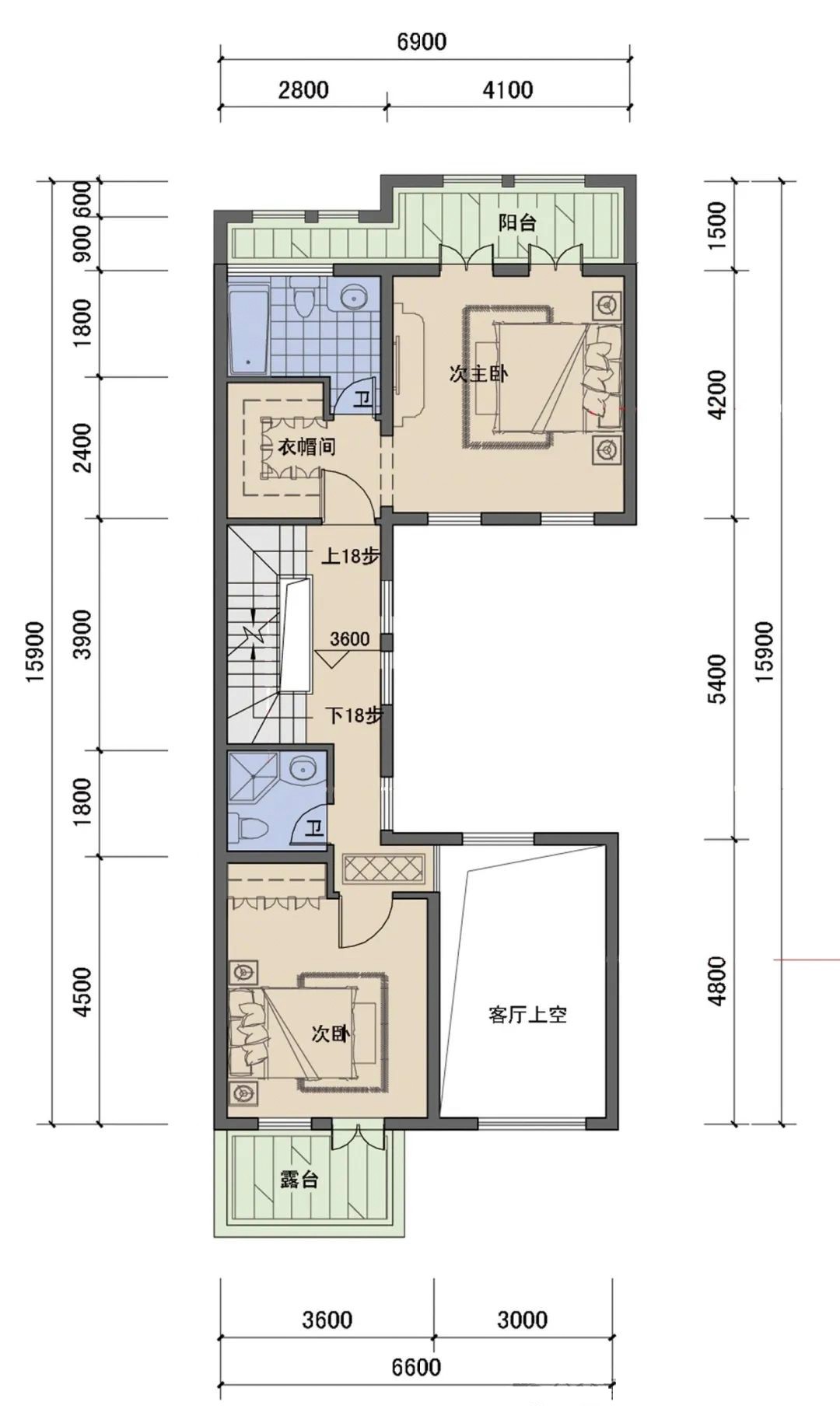
    **二层平面**

    KAIHN铠瀚|定制设计|北欧家具|美式家具|现代家具|新中式家具|家居家具|商业道具|实木家具|展示展柜|布艺沙发|实木椅子|实木桌子|实木茶几|实木床|实木衣柜|工程单家具|一件代发|厂家直销

    1. **次主卧配套**:次主卧室拥有独立卫生间、敞开式衣帽间以及通往阳台的通道,彰显尊贵生活品质。


    2. **流线设计**:楼梯和通道的巧妙布置连接各个功能区域,保持流畅合理的动线。


    3. **客厅挑空**:大挑空的客厅设计增加了空间感,并可作为额外的赠送房间。


    **三层平面**

    KAIHN铠瀚|定制设计|北欧家具|美式家具|现代家具|新中式家具|家居家具|商业道具|实木家具|展示展柜|布艺沙发|实木椅子|实木桌子|实木茶几|实木床|实木衣柜|工程单家具|一件代发|厂家直销

    1. **主卧独享层**:主卧室拥有专属的衣帽间和卫生间,确保隐私和尊崇感。


    2. **露台设计**:超大屋顶露台提供了绝佳的视野和户外活动空间,增强了居住的体验。


    在具体的设计方案中,每个楼层的功能区应充分考虑使用者的生活习惯和偏好,同时结合建筑规范和当地的气候条件进行优化设计。此外,室内装饰和材质的选择也应符合整体的设计风格和业主的审美要求。


    作者

    作者

    欢迎您光临我们公司,我们提供最优质的服务,欢迎您的光临。

    推荐产品

    • 北欧简约实木布艺餐椅
    • Stakk小方椅
    • 温莎椅子
    • 桠杈系列北欧简约实木铁杉木桌子
    • 北欧懒人布艺椅
    • 橙色吊灯
    • 圆形玻璃灯
    • FIN-95懒人小方椅
    • 木制菜碟小套件
    • Tapani table
    • Pendant lamp
    • Vandmand简洁小吊灯