10.8×13.9米自建房平面方案

    2023.05.07 KAIHN 3229

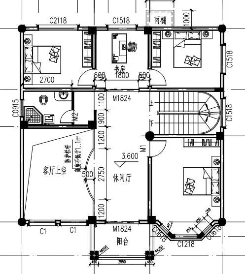
    开间10.8米进深13.9米

    这幢自建房别墅的外观设计非常吸引人,特别是八角窗的设计,给人一种独特的感觉。这种设计不仅美观,而且能够提供充足的自然光线,使得房间内部明亮舒适。此外,这幢别墅的内部功能布局也非常合理,完全符合农村的生活习惯。

    KAIHN铠瀚|定制设计|北欧家具|美式家具|现代家具|新中式家具|家居家具|商业道具|实木家具|展示展柜|布艺沙发|实木椅子|实木桌子|实木茶几|实木床|实木衣柜|工程单家具|一件代发|厂家直销

    例如,餐厅的设计非常贴心,保留了后门,方便居民进行一些粗加工,如剖鱼、宰鸡等。这样的设计既方便又实用,使得居民在准备食物时更加轻松。


    客厅的设计也非常豪华气派,挑空的设计使得整个空间显得更加宽敞明亮。这种设计不仅能够提供一个舒适的休息环境,也能够满足居民的娱乐需求。


    楼梯的设计也非常独特,采用弧形设计,使得整个楼梯显得生动有趣。这种设计不仅美观,也能够增加楼梯的安全性。


    一楼的空间布置得非常合理,设有客厅、餐厅、厨房、棋牌室和老人房。这样的布局使得家庭成员可以在同一个空间内进行各种活动,增加了家庭的亲密感。


    二楼和三楼分别设计了主卧套房和次卧,满足了一家人的居住需求。这些卧室的设计都非常舒适,提供了一个良好的休息环境。

    KAIHN铠瀚|定制设计|北欧家具|美式家具|现代家具|新中式家具|家居家具|商业道具|实木家具|展示展柜|布艺沙发|实木椅子|实木桌子|实木茶几|实木床|实木衣柜|工程单家具|一件代发|厂家直销

    三楼还设有一个大露台,满足了居民洗衣、晾晒、娱乐和休闲的需求。这个露台的设计非常实用,提供了一个多功能的空间。

    KAIHN铠瀚|定制设计|北欧家具|美式家具|现代家具|新中式家具|家居家具|商业道具|实木家具|展示展柜|布艺沙发|实木椅子|实木桌子|实木茶几|实木床|实木衣柜|工程单家具|一件代发|厂家直销

    总的来说,这幢自建房别墅的设计非常人性化,无论是外观还是内部布局,都非常符合农村的生活习惯。它不仅提供了舒适的居住环境,也满足了居民的各种需求。

           如果您喜欢本套图纸的风格,但尺寸和布局不符合实际建房需求,可以后台私信量身定制设计。


    作者

    作者

    欢迎您光临我们公司,我们提供最优质的服务,欢迎您的光临。

    推荐产品

    • 北欧简约实木布艺餐椅
    • Stakk小方椅
    • 温莎椅子
    • 桠杈系列北欧简约实木铁杉木桌子
    • 北欧懒人布艺椅
    • 橙色吊灯
    • 圆形玻璃灯
    • FIN-95懒人小方椅
    • 木制菜碟小套件
    • Tapani table
    • Pendant lamp
    • Vandmand简洁小吊灯