7x13米现代三层自建别墅|露台与庭院相结合

    2023.04.17 KAIHN 3611

    7x13米现代三层自建别墅|露台与庭院相结合

    KAIHN铠瀚|定制设计|北欧家具|美式家具|现代家具|新中式家具|家居家具|商业道具|实木家具|展示展柜|布艺沙发|实木椅子|实木桌子|实木茶几|实木床|实木衣柜|工程单家具|一件代发|厂家直销

    项目概况:宅基地为7*13米,场地较为平坦,四处没有明显的凹凸,门口为道路主干道。

    KAIHN铠瀚|定制设计|北欧家具|美式家具|现代家具|新中式家具|家居家具|商业道具|实木家具|展示展柜|布艺沙发|实木椅子|实木桌子|实木茶几|实木床|实木衣柜|工程单家具|一件代发|厂家直销

    设计难点:业主在想要在二三层能设计出独立的阳台,该地形平坦,通过阳台能够充分发挥眺望视野。

    设计思路:

    首层设计:通过外庭院的设计将客厅设计在主入口能充分利用多余的空间,让客厅有良好的绿化环境事业以及通风采光,入门餐客一体化设计让整个建筑内部视野上更宽阔。

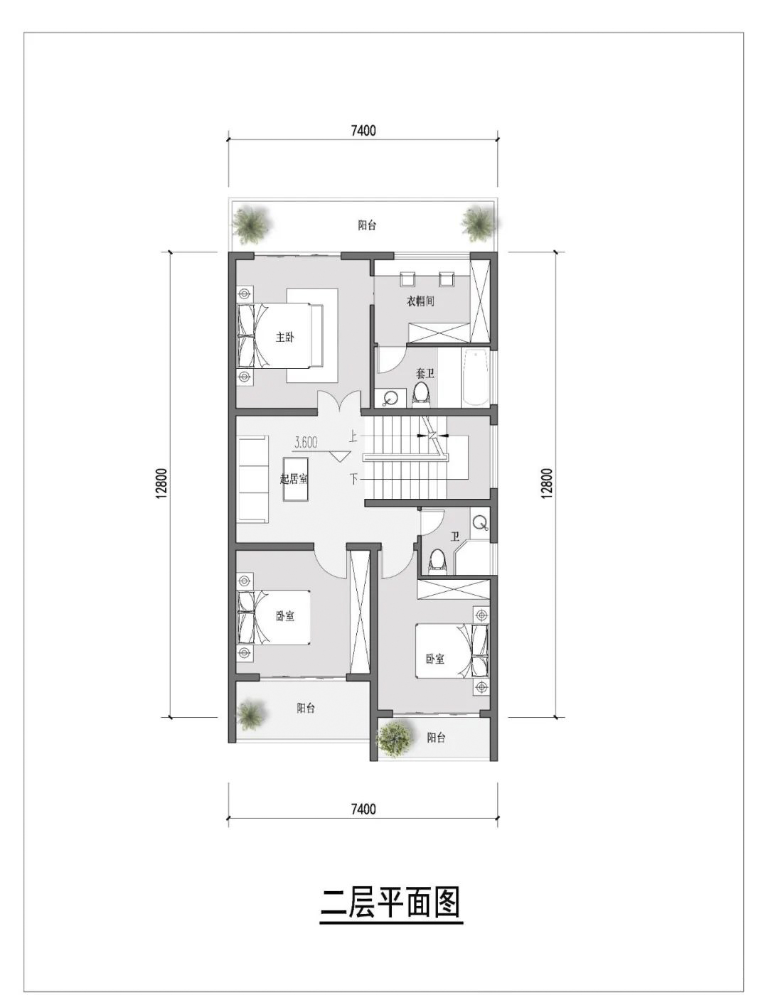
    ②二三层设计:在建筑的南北两侧设计独立露台,在露台上能有更好的视野。

    立面造型:在造型上采用简单的材质,区分出二三层露台的部分采用不同色调的材质来体现,其余的风格采用简洁耐看的色调。

    本方案利用充分的发挥了客厅与庭院的延伸功能。通过低成本营造更具有氛围的现代自建房,让每个空间都能够满足业主的设计需求。

    KAIHN铠瀚|定制设计|北欧家具|美式家具|现代家具|新中式家具|家居家具|商业道具|实木家具|展示展柜|布艺沙发|实木椅子|实木桌子|实木茶几|实木床|实木衣柜|工程单家具|一件代发|厂家直销

    KAIHN铠瀚|定制设计|北欧家具|美式家具|现代家具|新中式家具|家居家具|商业道具|实木家具|展示展柜|布艺沙发|实木椅子|实木桌子|实木茶几|实木床|实木衣柜|工程单家具|一件代发|厂家直销

    KAIHN铠瀚|定制设计|北欧家具|美式家具|现代家具|新中式家具|家居家具|商业道具|实木家具|展示展柜|布艺沙发|实木椅子|实木桌子|实木茶几|实木床|实木衣柜|工程单家具|一件代发|厂家直销

    KAIHN铠瀚|定制设计|北欧家具|美式家具|现代家具|新中式家具|家居家具|商业道具|实木家具|展示展柜|布艺沙发|实木椅子|实木桌子|实木茶几|实木床|实木衣柜|工程单家具|一件代发|厂家直销

    KAIHN铠瀚|定制设计|北欧家具|美式家具|现代家具|新中式家具|家居家具|商业道具|实木家具|展示展柜|布艺沙发|实木椅子|实木桌子|实木茶几|实木床|实木衣柜|工程单家具|一件代发|厂家直销


    作者

    作者

    欢迎您光临我们公司,我们提供最优质的服务,欢迎您的光临。

    推荐产品

    • 北欧简约实木布艺餐椅
    • Stakk小方椅
    • 温莎椅子
    • 桠杈系列北欧简约实木铁杉木桌子
    • 北欧懒人布艺椅
    • 橙色吊灯
    • 圆形玻璃灯
    • FIN-95懒人小方椅
    • 木制菜碟小套件
    • Tapani table
    • Pendant lamp
    • Vandmand简洁小吊灯