10X10米二层现代风格自建别墅

    2023.04.17 KAIHN 5708

    基于项目背景和业主需求,以下是这个案例设计思路:


    **一层设计**


    1. **敞开式车库**:考虑到业主需要车库,并且希望它是敞开式的,可以设计一个足够宽敞的车库入口,不仅可以容纳车辆,还可以作为户外活动的空间。车库顶部可以考虑安装可开合的透明屋顶,以增加自然光照明并减少炎热天气下的直射阳光。

    KAIHN铠瀚|定制设计|北欧家具|美式家具|现代家具|新中式家具|家居家具|商业道具|实木家具|展示展柜|布艺沙发|实木椅子|实木桌子|实木茶几|实木床|实木衣柜|工程单家具|一件代发|厂家直销

    2. **客厅与厨房**:客厅布置在入户后的位置,与餐厅通过一个间隔区域分隔开来,这样的设计既保证了空间的开放感,又能够在一定程度上保持生活的隐私性。厨房则布置在北侧,紧邻餐厅,方便用餐流程。

    KAIHN铠瀚|定制设计|北欧家具|美式家具|现代家具|新中式家具|家居家具|商业道具|实木家具|展示展柜|布艺沙发|实木椅子|实木桌子|实木茶几|实木床|实木衣柜|工程单家具|一件代发|厂家直销

    3. **功能房**:剩余的空间可以根据业主的需求设计成储藏室、洗衣房或其他必要的辅助空间。


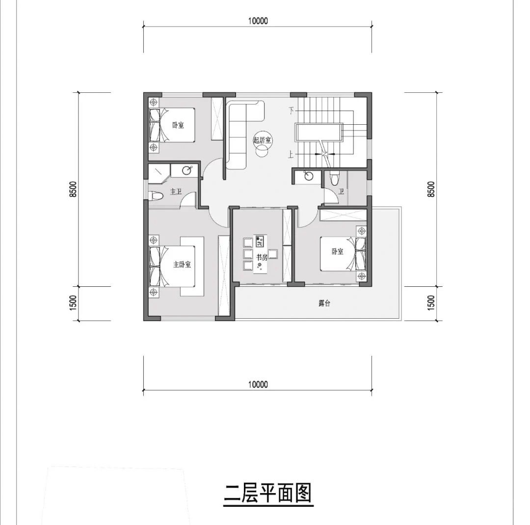
    **二层设计**


    1. **起居室**:二层可以设置一个舒适的起居室,作为家庭成员休息和娱乐的中心区域。


    2. **卧室与书房**:根据业主需求,二层设计三个卧室,其中一个卧室可以设计成主卧套房,配备独立的卫生间和衣帽间。另外两个卧室可根据大小分配为孩子房或客房。书房则可以设计在卧室区域的旁边,提供一个安静的阅读或工作环境。


    3. **大露台与回型露台设计**:南侧的主卧室可以设计一个面向庭院的阳台,以提供宜人的户外景观视野。此外,可以在二层的其他方向设计一个大露台,结合回型露台设计,不仅增加了室外活动空间,也为家庭聚会提供了绝佳场所。

    KAIHN铠瀚|定制设计|北欧家具|美式家具|现代家具|新中式家具|家居家具|商业道具|实木家具|展示展柜|布艺沙发|实木椅子|实木桌子|实木茶几|实木床|实木衣柜|工程单家具|一件代发|厂家直销

    **整体设计要点**


    - 简洁的建筑形态:通过干净利落的线条和简约的外观设计,减少不必要的装饰元素,突出现代感和美学品味。

    - 功能性与舒适性相结合:在满足基本功能需求的同时,注重居住的舒适性和室内外的流动性。

    - 考虑成本控制:在材料选择和施工工艺上,寻找性价比高的解决方案,确保建筑的经济性。

    KAIHN铠瀚|定制设计|北欧家具|美式家具|现代家具|新中式家具|家居家具|商业道具|实木家具|展示展柜|布艺沙发|实木椅子|实木桌子|实木茶几|实木床|实木衣柜|工程单家具|一件代发|厂家直销

    最终的设计应该结合当地的建筑规范和业主的具体预算进行调整,以确保方案的可行性和实用性。

    KAIHN铠瀚|定制设计|北欧家具|美式家具|现代家具|新中式家具|家居家具|商业道具|实木家具|展示展柜|布艺沙发|实木椅子|实木桌子|实木茶几|实木床|实木衣柜|工程单家具|一件代发|厂家直销


    作者

    作者

    欢迎您光临我们公司,我们提供最优质的服务,欢迎您的光临。

    推荐产品

    • 北欧简约实木布艺餐椅
    • Stakk小方椅
    • 温莎椅子
    • 桠杈系列北欧简约实木铁杉木桌子
    • 北欧懒人布艺椅
    • 橙色吊灯
    • 圆形玻璃灯
    • FIN-95懒人小方椅
    • 木制菜碟小套件
    • Tapani table
    • Pendant lamp
    • Vandmand简洁小吊灯