6x16米现代三层别墅|带中庭两侧无采光

    2022.03.15 KAIHN 6804

    6x16米现代三层别墅|带中庭两侧无采光

    项目背景:业主的宅基地为6*16米狭长形地带,左右都有邻居,无采光。

    KAIHN铠瀚|定制设计|北欧家具|美式家具|现代家具|新中式家具|家居家具|商业道具|实木家具|展示展柜|布艺沙发|实木椅子|实木桌子|实木茶几|实木床|实木衣柜|工程单家具|一件代发|厂家直销

    业主需求:一层要有餐客厅,其他各层一共需要5个卧室。主要担忧开间场地小,楼梯占用空间太大,采光通风问题无法获得解决。

    KAIHN铠瀚|定制设计|北欧家具|美式家具|现代家具|新中式家具|家居家具|商业道具|实木家具|展示展柜|布艺沙发|实木椅子|实木桌子|实木茶几|实木床|实木衣柜|工程单家具|一件代发|厂家直销

    设计思路:

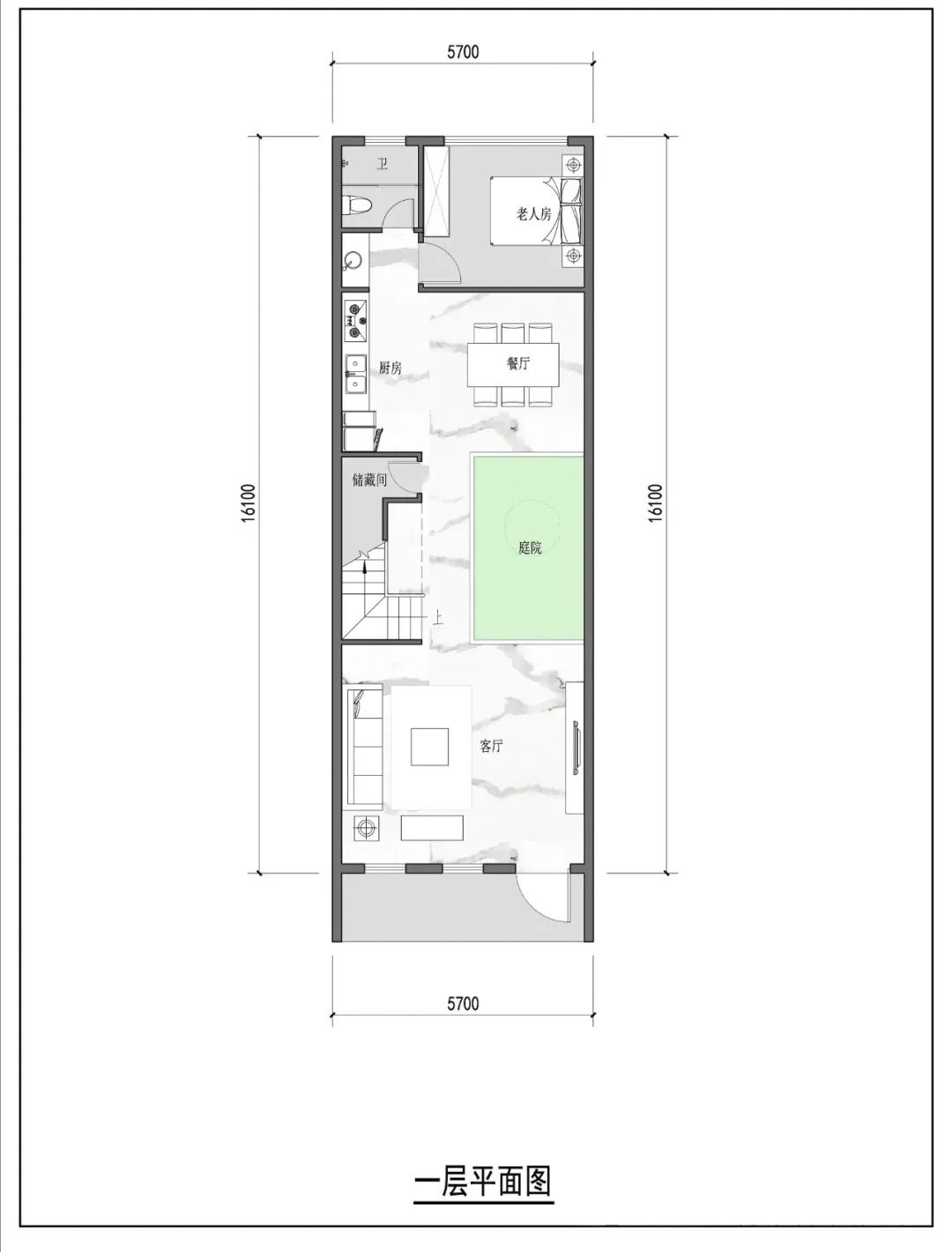
    一层设计:入口为大客厅,在楼梯前后做了错层设计,餐厅与客厅有高差,在中间布置了庭院,增加了采光性、通风性需求,错层的设计满足了多房间的需求。

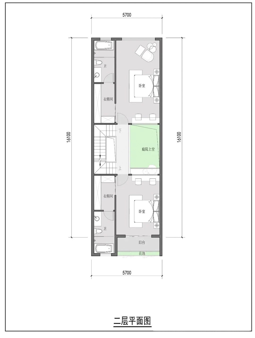
    二层设计:中间设置采光中庭,南侧和北侧各设置一个套卧,两面都满足了采光和通风,丰富了建筑内部场景变化。

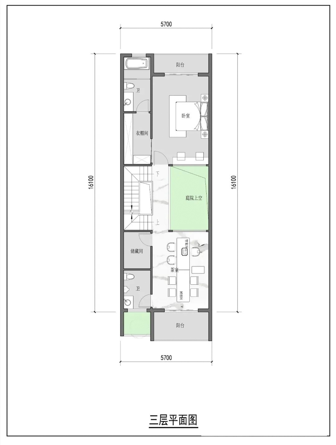
    三层设计:中间设置采光中庭,房间布置也二层同理,满足了房间的各种条件需求。

    四层设计:南侧为露台,满足了全家露天活动的各种需求。

    本方案方案基本满足业主的需求,利用庭院解决采光通风问题,提高了住宅的舒适性。错层的设计,节约了楼梯空间。

    KAIHN铠瀚|定制设计|北欧家具|美式家具|现代家具|新中式家具|家居家具|商业道具|实木家具|展示展柜|布艺沙发|实木椅子|实木桌子|实木茶几|实木床|实木衣柜|工程单家具|一件代发|厂家直销

    KAIHN铠瀚|定制设计|北欧家具|美式家具|现代家具|新中式家具|家居家具|商业道具|实木家具|展示展柜|布艺沙发|实木椅子|实木桌子|实木茶几|实木床|实木衣柜|工程单家具|一件代发|厂家直销

    KAIHN铠瀚|定制设计|北欧家具|美式家具|现代家具|新中式家具|家居家具|商业道具|实木家具|展示展柜|布艺沙发|实木椅子|实木桌子|实木茶几|实木床|实木衣柜|工程单家具|一件代发|厂家直销

    KAIHN铠瀚|定制设计|北欧家具|美式家具|现代家具|新中式家具|家居家具|商业道具|实木家具|展示展柜|布艺沙发|实木椅子|实木桌子|实木茶几|实木床|实木衣柜|工程单家具|一件代发|厂家直销

    KAIHN铠瀚|定制设计|北欧家具|美式家具|现代家具|新中式家具|家居家具|商业道具|实木家具|展示展柜|布艺沙发|实木椅子|实木桌子|实木茶几|实木床|实木衣柜|工程单家具|一件代发|厂家直销

    如果您喜欢本套图纸的风格,但尺寸和布局不符合实际建房需求,可以后台私信量身定制设计。

    作者

    作者

    欢迎您光临我们公司,我们提供最优质的服务,欢迎您的光临。

    推荐产品

    • 北欧简约实木布艺餐椅
    • Stakk小方椅
    • 温莎椅子
    • 桠杈系列北欧简约实木铁杉木桌子
    • 北欧懒人布艺椅
    • 橙色吊灯
    • 圆形玻璃灯
    • FIN-95懒人小方椅
    • 木制菜碟小套件
    • Tapani table
    • Pendant lamp
    • Vandmand简洁小吊灯